BACK HOMEPAGE ARCHITETTURA PITTURA FILOSOFIA FONDAZIONE

B.1.6.5.10

PROGETTI RECENTI


1991 - 2008
VITTORIO MAZZUCCONI
La Piramide del Palatino (10/15)

Progetto di Vittorio Mazzucconi per un Centro Congressi e Auditorium a Roma
2000-2003


Indice PIRAMIDE DEL PALATINO
Indice PROGETTI RECENTI

English



 
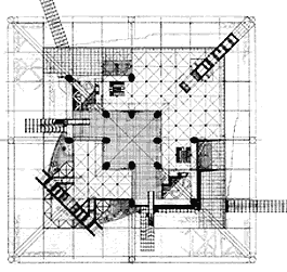
Pianta livello archeologico
cliccare sulle piante per ingrandirle














Pianta livello 8 (Forum)
Pianta livello 12