BACK HOMEPAGE ARCHITETTURA PITTURA FILOSOFIA FONDAZIONE

B.1.6.7.5

PROGETTI RECENTI


1991 - 2008
VITTORIO MAZZUCCONI
in collaborazione con Maurizio Tricomi
Case di abitazione (5/12)

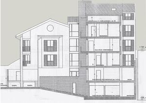
Viale Cassala 39
Progetto di Vittorio Mazzucconi per un condominio a Milano
2004-2008


Indice CASE DI ABITAZIONE
Indice PROGETTI RECENTI

English
Cliccare le immagini per ingrandirle
Il Patio

Sezione e fianco est

Sezione

Pianta P.T.

Pianta 1° Piano