BACK HOMEPAGE ARCHITETTURA PITTURA FILOSOFIA FONDAZIONE

B.1.5.7.1

ATHENA

progetti per Atene
di

VITTORIO MAZZUCCONI
in collaborazione con J. Vikellas
Centro Polis 1 e 2  (1/3)
 
Atene 1988 - 92
 
Palazzo di Uffici e negozi
Diethnis Techniki (Babis Vovos)


Indice progetti ATHENA

English
Portfolio Divisare
Cliccare le immagini per ingrandirle

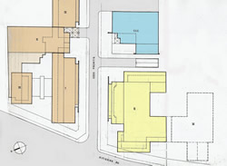
Planimetria

Polis 1
Polis 2
C.C.C.
Fronte Kifissias Avenue
 









Primo studio
L’idea iniziale era quella di un volume articolato che, successivamente, per ragioni commerciali imposte dal cliente, è stato semplificato.

Nel Centro Polis, il tema della città classica convive con la modernità nella stessa linea stilistica degli altri progetti Ateniesi di Mazzucconi. Le esigenze economiche di sfruttamento dell'area hanno imposto un'altezza di otto piani, mentre è stata limitata visualmente a tre o quattro piani l'altezza degli edifici classici della città ideale che l'architetto aveva nell'anima: edifici e frammenti che in qualche caso realmete costruiti e in qualche altro sono solo suggeriti con mezzi grafici, riflessi, accenni destrutturati. Questi mezzi vogliono solo suggerire il senso e la silhouette di una città altra e poetica, in un rapporto espressivo con la città della realtà ordinaria. Mazzucconi ha dimostrato in tutti i suoi progetti di essere in grado di gestire questo rapporto con molta professionalità e senza errori, ma non è stato purtroppo così per la Committenza del progetto che ha finito col farne una realizzazione solo commerciale, scavalcando l'architetto, non solo nella direzione dei lavori, ma in decisioni di ogni tipo, che hanno finito col compromettere gravemente la qualità del progetto. Questo finisce quindi purtroppo con l'esprimere il rapporto fra poesia e realtà non al livello in cui la poesia sa accogliere, capire profondamente e trasformare la realtà, anche nei suoi aspetti peggiori ma a quello in cui la cosidetta realtà dell'attività affaristica fine a se stessa spenge ogni possibile poesia.